잠실 르엘 분양 일정 | 잠실 르엘 일반분양 평면도
- 잠실 르엘 분양 일정
- 잠실 르엘 일반분양가
- 잠실 르엘 평면도
잠실 르엘 분양 일정



서울 송파구 신천동 옛 미성·크로바 아파트를 재건축한 ‘잠실 르엘’이 오는 2025년 7월 일반분양에 나섭니다. 후분양 방식으로 진행돼 당첨자는 불과 다섯 달 뒤인 12월에 곧바로 입주할 수 있다는 점에서 큰 관심을 받고 있어요.
롯데건설의 하이엔드 브랜드 ‘르엘’이 적용되는 이 단지는 총 1,865가구 규모로 조성되며, 이 중 전용 45㎡~74㎡ 216가구만 일반분양으로 풀립니다. 분양가 상한제가 적용돼 주변 시세 대비 저렴하게 공급될 예정이어서 ‘하반기 강남권 최대 기대작’으로 꼽히고 있습니다.
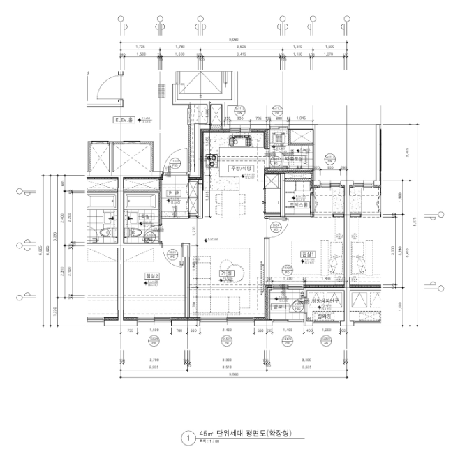
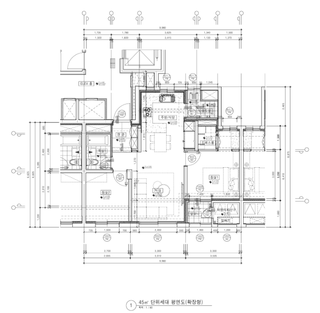
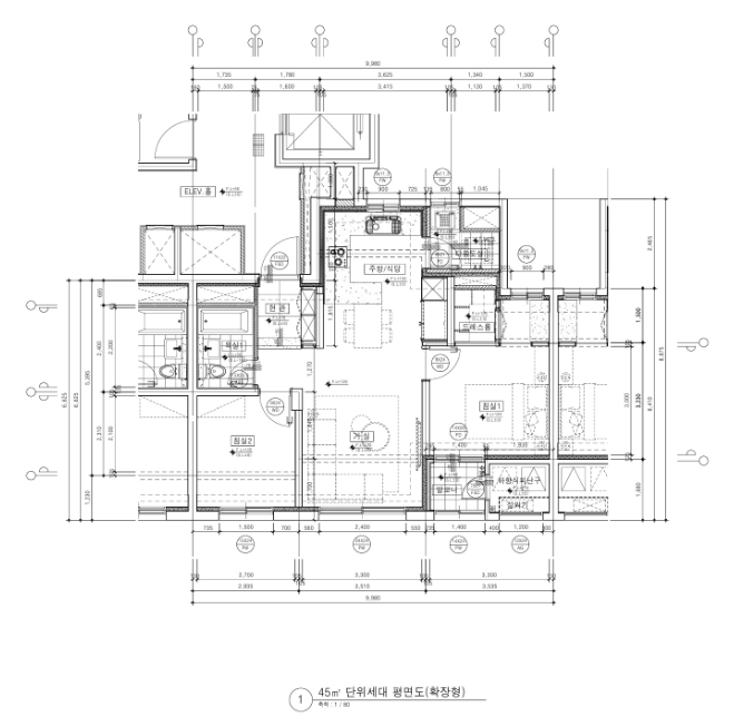
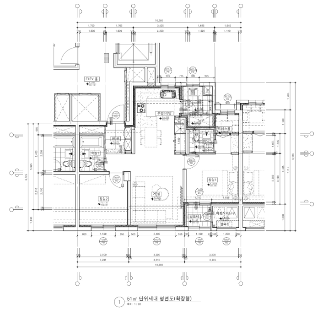
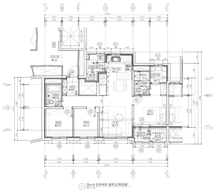
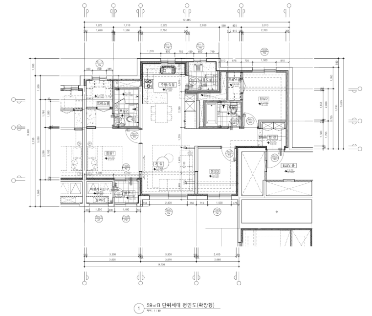
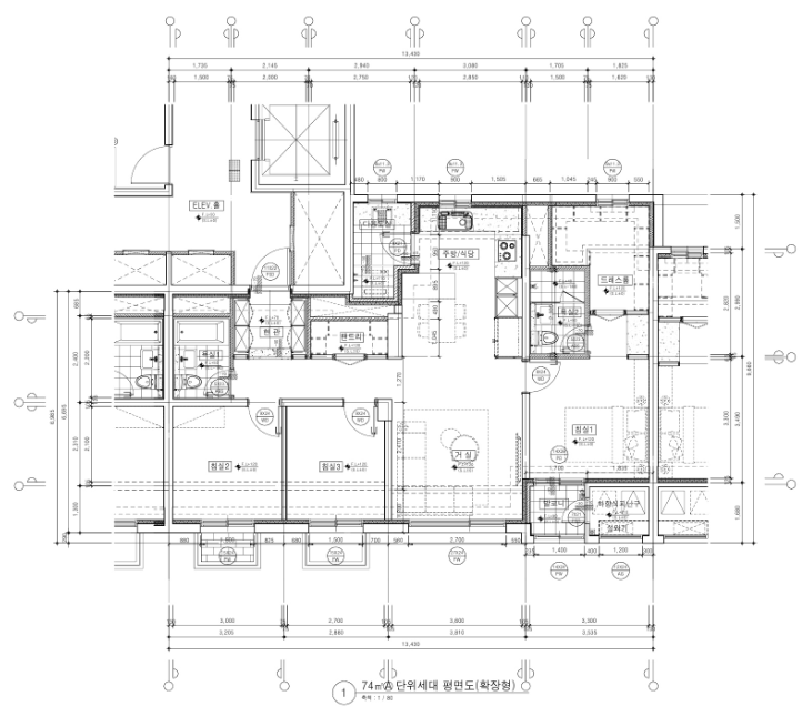
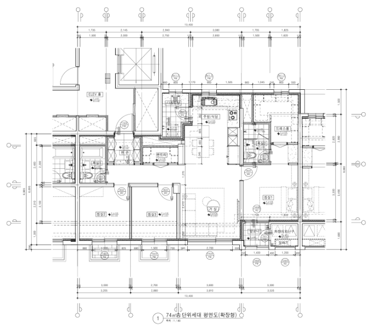
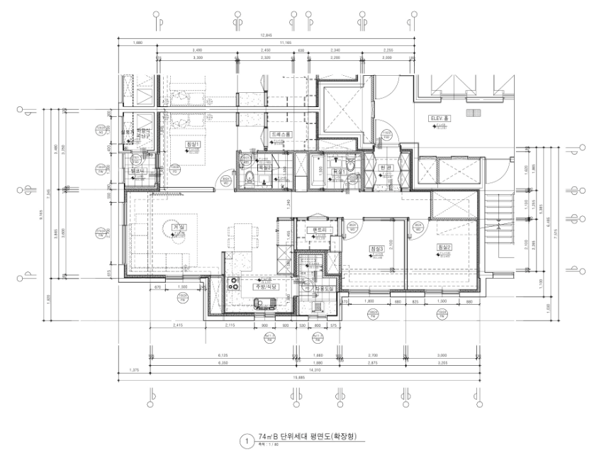
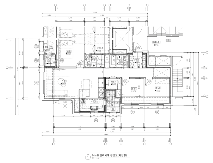
잠실르엘 평면도 및 구성


잠실 르엘은 소형·중형 위주의 평형 구성으로 실수요자 중심의 청약이 예상됩니다.
- 45㎡ : 46세대
- 51㎡ : 11세대
- 59㎡ : 92세대
- 74㎡ : 67세대
총 216세대가 일반분양 물량으로 배정돼 경쟁률은 치열할 것으로 보입니다.


공개된 평면도를 보면 공간 활용도를 높인 3Bay·4Bay 구조가 중심이에요. 특히 59㎡와 74㎡ 타입은 맞통풍이 가능한 판상형 위주로 설계돼 환기와 채광이 뛰어나며, 일부 타입에는 드레스룸과 알파룸이 배치돼 실사용 면적을 극대화했어요. 소형 평형인 45㎡와 51㎡는 1~2인 가구를 겨냥해 거실과 주방을 일체형 구조로 구성하면서도 수납공간을 넉넉히 확보했습니다.
일반분양가 전망



잠실 르엘은 분양가 상한제가 적용돼 주변 시세보다 낮게 책정될 예정이에요. 예상 분양가는 3.3㎡당 약 5,400만~6,000만 원 수준으로 추산됩니다.
- 59㎡ : 약 12억 원대
- 74㎡ : 약 15억~18억 원대
- 84㎡(비교용) : 약 17억~20억 원대
인근 파크리오·엘스·헬리오시티 84㎡가 20억 원 초반에서 많게는 30억 원대까지 거래되는 점을 고려하면, 당첨 시 최대 10억 원 이상의 시세차익도 기대할 수 있다는 분석이 나와요. 이 때문에 시장에서는 잠실 르엘을 대표적인 ‘로또 청약’ 단지로 꼽고 있습니다.
잠실 르엘 6.27 부동산 대책



잠실 르엘이 더 주목받는 이유는 6.27 대출 규제 이후 첫 강남권 대규모 분양이기 때문이에요. 규제에 따라 주택담보대출 한도가 최대 6억 원으로 제한되고, 소유권 이전 조건부 전세대출도 막혀 최소 12억 원 이상의 현금이 필요하다는 분석이 나옵니다.
청약자 수는 줄어들지만 커트라인은 낮아질 수 있다는 전망이 나오는 이유예요. 실제로
제기동 아이파크의 경우 최저 당첨 점수가 50점대까지 떨어졌다는 점은 자금력이 있는 실수요자에게 중요한 신호로 해석됩니다.
하반기 분양 시장 속 잠실 르엘



부동산R114 자료에 따르면 올해 하반기 서울에선 19개 단지, 1만 8,158가구가 분양에 나서며 이 중 강남3구에서만 8개 단지가 공급됩니다. 하지만 일반분양 물량은 매우 제한적이에요. 특히 잠실 르엘은 후분양·분양가 상한제·강남 핵심 입지라는 세 가지 요소를 모두 갖췄고, 32층에 조성될 스카이브릿지가 단지의 랜드마크로 자리 잡을 예정입니다.
잠실 르엘 분양 일정 | 잠실 르엘 일반분양 평면도